Трехкомнатная квартира 71,90 м2 по ул. Дмитровское шоссе 71 за 23820299 руб.

Трехкомнатная квартира по ул. Дмитровское шоссе, 71 в Москве
Цена 23 820 299 р. (331 298 р./м2)
Подать заявку на ипотеку
Район Западное Дегунино
Адрес Дмитровское шоссе, 71
Этаж 21/26
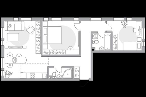
Площадь общая 71,9 м2, жилая 46,7 м2, кухни 5 м2
Кол-во комнат Трехкомнатная
Продается 3-комн. квартира, площадью 71.9 м2 в монолитной новостройке в 3 мин. пешком от м. Верхние Лихоборы, район города - Западное Дегунино. Возможен вариант покупки с использованием ипотечных средств, есть рассрочка, возможна покупка с использованием материнского капитала, есть военная ипотека. Жилая площадь 46.7 м2, кухня 5 м2. Площадь комнат: 21.20/14.80/10.70 м2, черновая отделка, окна выходят во двор. Квартира располагается на 21 этаже 26-этажного дома в ЖК Тринити. Застройщик - ООО "СЗ "Стройтэк", сдача дома - II квартал 2025 года. Подземная парковка ЖК «Тринити-2» возводится в трех минутах ходьбы от станции метро «Верхние Лихоборы» и представляет собой концептуальное продолжение ЖК «Тринити», одного из самых популярных столичных объектов, лидера рейтингов жилой недвижимости. Четыре монолитных дома переменной этажности будут построены на благоустроенной территории Четыре монолитных дома переменной этажности от 5 до 33 этажей, объединенные закрытым благоустроенным двором без машин, образуют единый архитектурный ансамбль с жилым комплексом «Тринити», который находится рядом Жилой комплекс «Тринити-2» возводится в Северном административном округе столицы, недалеко от Дмитровского шоссе, на территории площадью 1,5 гектара. Позвоните и узнайте условия покупки прямо сейчас!
Описание дома
Этажность дома 26
Объявление № 22905625
Дата подачи:
16 июля 2025 г. 8:47
Дата обновления:
16 июля 2025 г. 7:45
Просмотров 10 Хотите продать быстрее?

Продавец
Отдел продаж
Показать номер телефона
Пожаловаться
Комментарии:
Добавить